令和08年2月27日 11時31分 更新
次回更新予定日:令和08年2月28日
アン・オノメア株式会社
マンション 3000〜3499万円物件情報
お急ぎの方はこちらまでお電話ください
0120-851-272
トップページへ
>
居住用物件一覧へ
> 物件情報
駅名別一覧
間取一覧
写真一覧
地図一覧
地域一覧
この他にも、売主様等のご都合により、ホームページ上に記載できない物件が多数ございます。
希望条件登録をして頂ければ、ご紹介出来ます。
登録はこちらから ⇒
こちら
既に会員登録がお済の方はこちらから ⇒
クリック
物件番号
写真画像
所在地
価格
バス
徒歩
土地面積
建物面積
間取
構造
築年月
引渡時期
詳細
画像
Bm1701
神奈川県相模原市南区上鶴間本町6丁目3-1
3,290万円
−
9分
67.75m
2
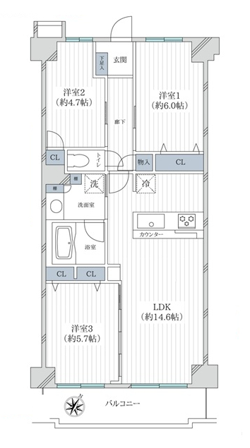
3LDK
鉄筋コンクリート造
H05/03
相談
♪メイツ相模大野
こちらのコメントは物件のかんたんな概要になります。
詳細なご説明をご希望の方はメール、或いはフリーダイヤルにてお気軽にご連絡ください。
【通学区】
鶴薗小学校徒歩約7分・谷口中学校徒歩約5分
【交通アクセス】
☆小田急小田原線、江ノ島線、JR横浜線の3路線、相模大野駅と町田駅の2駅が利用できます。
☆相模大野駅までは平坦ですが、町田駅までは一部緩やかな坂道を通ります。
【環境】
☆物件は準工業地域というエリアに存します。
準工業地域は、主に環境悪化の恐れのない軽工業の工場等の業務の利便を図る地域で、工業地域の一種ではありますが、公害発生などの恐れが大きい工場の建築は禁止されています。
全国的に見た場合には、小規模工場や戸建に加えて、マンション・店舗・飲食店・事務所・オフィスビルなどが混在する街並みが多いようです。
商業地域と同じく建てることができる用途の種類は多いものの、商業地域よりも日当たりや日影など各種制限の内容が厳しく設定されています。
☆南東向きで、前面には高層建築物等もなく日当たり眺望とも良好です。
リノベーション済で水回りも含め内装は新築同様です。
★南西約80mを国道16号線が通っているため、夜間などは車両の通行音などが聞こえます。
【治安】
☆物件の周辺には騒音を出すような店舗や不良のたまり場のような場所はありません。
☆マンションが接している前面道路は町田方面から国道16号線への相模大野方面への抜け道に利用されており車の交通量は若干多いですが、歩道は車道と完全に分離されています。
☆駅からの道のりは街灯設備も多く夜間も明るいです。
【生活関連施設】
●行政
南区役所上鶴間連絡所約340m
谷口郵便局約620m
●買物
スーパー三和約740m
セブンイレブン約140m
ドラッグストア・ウエルパーク約580m
●医療
相模大野病院(救急指定総合病院)約730m
相模大野メディカルヴィレッジ(内科、消化器科、整形外科、リハビリテーション科、歯科)約250m
木村医院(内科、小児科、循環器科、放射線科)約580m
【防災】
☆当該マンションは相模原市浸水ハザードマップの浸水想定区域には該当しません。
☆神奈川県安全防災局安全防災部災害対策課作成の
神奈川県地震被害想定調査結果では、
都心南部直下型地震の際の
当該エリア(ローム台地)の
・震度は6強
・液状化危険度は“液状化対象外”
・全壊棟数5以上10未満
・焼失棟数ゼロ(250mメッシュ中)
と診断されています。
※現地販売の業者の多くは売主ではありません。
現地に他社の看板やのぼりが設置されている場合がありますが、当ホームページの掲載物件はすべて弊社取扱物件となっておりますのでご安心ください。(個人情報の提供等をなされますと当社での物件紹介ができなくなる場合が御座います)。
現地提示のご購入特典等につきましてはご相談ください。
Bm1627
神奈川県相模原市南区上鶴間4丁目29-3
3,290万円
−
27分
70.85m
2
3LDK+2WIC
鉄筋コンクリート造
H12/06
相談
♪
フォルスコート東林間
こちらのコメントは物件のかんたんな概要になります。
詳細なご説明をご希望の方はメール、或いはフリーダイヤルにてお気軽にご連絡ください。
【通学区】
・上鶴間小学校徒歩約6分
・上鶴間中学校徒歩約7分
【交通アクセス】
☆3路線3駅が利用可能です。
小田急小田原線「相模大野駅」徒歩約27分、小田急江ノ島線「東林間駅」徒歩約15分、、田園都市線「中央林間駅」徒歩約19分です。
【環境】
☆物件は第一種低層住居専用地域というエリアに存します。
第一種低層住居専用地域は、低層住宅の良好な環境を守るための地域です。
小規模な店舗や事務所を兼ねた住宅や小中学校などが建てられます。
建ぺい率・容積率、高さ(10mもしくは12m)などの制限が非常に厳しく、マンションも建てられますが高さの制限があるため高層マンションは建てられず、戸建住宅や低層マンションがメインとなるエリアです。
第二種低層住居専用地域との違いは床面積150u以内の2階建までの店舗や飲食店(コンビニエンスストアなど)が建てられないという点になります。
★所在階は5階で前方には日光を遮断するような高層建築物もなく日当たり眺望とも良好です。
☆リノベーション・マンションで現在は工事完了まであと少しです。
工事完了後は水回りも含め新築同様の仕上がりになると思います。
【治安】
☆周辺には夜遅くまで酒類を提供する飲食店や騒音を出すような店舗、不良のたまり場のような場所はありません。
☆マンション正面入口が接している道路は国道16線から中央林間方向への抜け道となっている為、若干の車両の通行があります。
【生活関連施設】
●行政
南区役所東林まちづくりセンター約1480m
上鶴間郵便局約900m
●買物
スーパー三和約1070m
東急ストア約1200m
スーパーライフ約800m
ユニディ約900m
MEGAドンキ約680m
セブンイレブン約950m
ローソン約470m
●医療
さがみ林間病院(救急指定総合病院 )約960m
佃医院(内科、小児科、外科、形成外科)約640m
秋元小児科クリニック約460m
渡辺歯科医院約650m
【防災】
☆当該マンションは浸水想定区域に該当しませんが、物件から北方向約70mの深堀川沿岸が0.5m未満の浸水想定区域に、マンション敷地北側隣接地が土砂災害警戒区域(急傾斜地)に指定されています。
☆神奈川県安全防災局安全防災部災害対策課作成の
神奈川県地震被害想定調査結果では、
・都心南部直下型地震の際の
・当該エリア(ローム台地)の
・震度は6弱
・液状化危険度は“液状化対象外”
・全壊棟数5以上10未満
・焼失棟数ゼロ(250mメッシュ中)
と診断されています。
※現地販売の業者の多くは売主ではありません。
現地に他社の看板やのぼりが設置されている場合がありますが、当ホームページの掲載物件はすべて弊社取扱物件となっておりますのでご安心ください。
(個人情報の提供等をなされますと当社での物件紹介ができなくなる場合が御座います)。
現地提示のご購入特典等につきましてはご相談ください。
ページトップへ