|
中古マンション
[価格]
3,290万円
|
||||
|---|---|---|---|---|
| 所在地 | 沿線/駅 バス徒歩 |
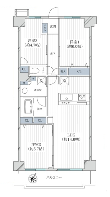
構造 間取 |
専有面積 バルコニ面積 |
築年月 引渡時期 |
| 神奈川県相模原市南区上鶴間本町6丁目3-1 | 小田急小田原線/相模大野駅 徒歩9分 |
鉄筋コンクリート造 3LDK |
67.75m² 7.66m² |
1993/03 相談 |

| 物件番号 | 1701 | ||
|---|---|---|---|
| 交通 | 小田急小田原線 相模大野駅まで 徒歩9分
小田急江ノ島線 相模大野駅まで 徒歩9分 JR横浜線 町田駅まで 徒歩17分 |
学区 | 鶴園小学校 550m 谷口中学校 400m |
| 駐車場 | 空無 | 駐車場料金 | 12,000円 |
| 修繕費 | 33,880円 | 諸費用 | |
| 総戸数 | 54戸 | 階/階建 | 3階/地上8階建 |
| 取引態様 | 仲介 | 用途地域 | 準工業地域 |
| 管理形態 | 全部委託 | バルコニ方向 | 南東 |
| 特色 | 都市ガス、エアコン、バス・トイレ別、シャワー、温水洗浄便座、インターネット、各室収納スペース、システムキッチン、カウンターキッチン、対面キッチン、浄水器、洗面所・パウダールーム、シャンプードレッサー、室内洗濯機置場、追焚機能、浴室乾燥機、フローリング、照明器具付、ディンプルキー、玄関人感センサーダウンライト、ワイドバルコニー、エレベーター、エントランス・オートロック、カラーモニター付インターホン、宅配ボックス、駐輪場、駐車場、バイク置場、外壁タイル貼、管理人、防犯カメラ、2階以上、火災・煙感知警報機設置済、南東バルコニー、3路線利用可、2駅利用可、駅まで平坦、リノベーションマンション、ユニットバス新規交換、トイレ新規交換、温水洗浄便座新規交換、シャンプードレッサー新規交換、防水パン新規交換、フローリング張替、フロアタイル張替、建具新規交換、照明器具新規設置、クロス張替、給湯器新規交換 | ||
| 取引条件有効期限 | 2026年03月19日 | ||
|
地図を右クリックでルート検索が可能です。
|